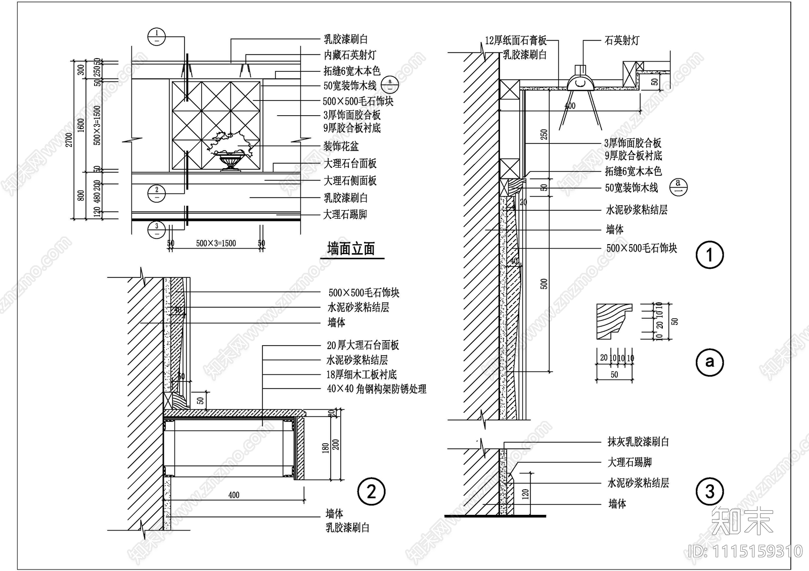
石材饰面装饰墙详图施工图下载【ID:1115159310】

石材饰面装饰墙详图CAD下载

ID: 1115159310
复制
上传作者
LY-DLY-D

上传时间2022-06-14

文件大小0.05M

设计风格:--

CAD版本:CAD2004

包含文件:CAD

授权独家

立即下载
收藏
分享
举报
相关推荐
综合
墙面节点
背景墙节点
轻钢龙骨隔墙
壁龛节点
隔音墙节点