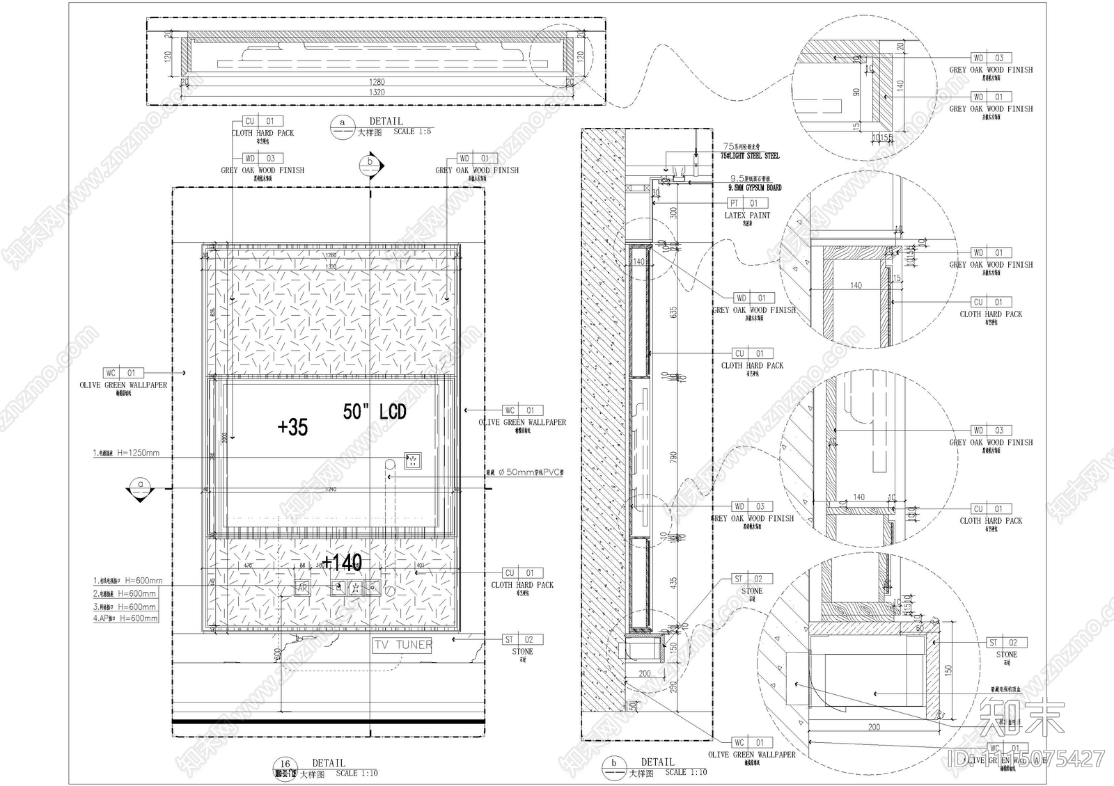
酒店电视背景墙大样施工图下载【ID:1115075427】

酒店电视背景墙大样CAD下载

ID: 1115075427
复制
上传作者
哦喂~~哦喂~~

上传时间2022-06-13

文件大小0.54M

设计风格:--

CAD版本:CAD2000

包含文件:CAD

授权独家

立即下载
收藏
分享
举报
相关推荐
综合
墙面节点
背景墙节点
轻钢龙骨隔墙
壁龛节点
隔音墙节点