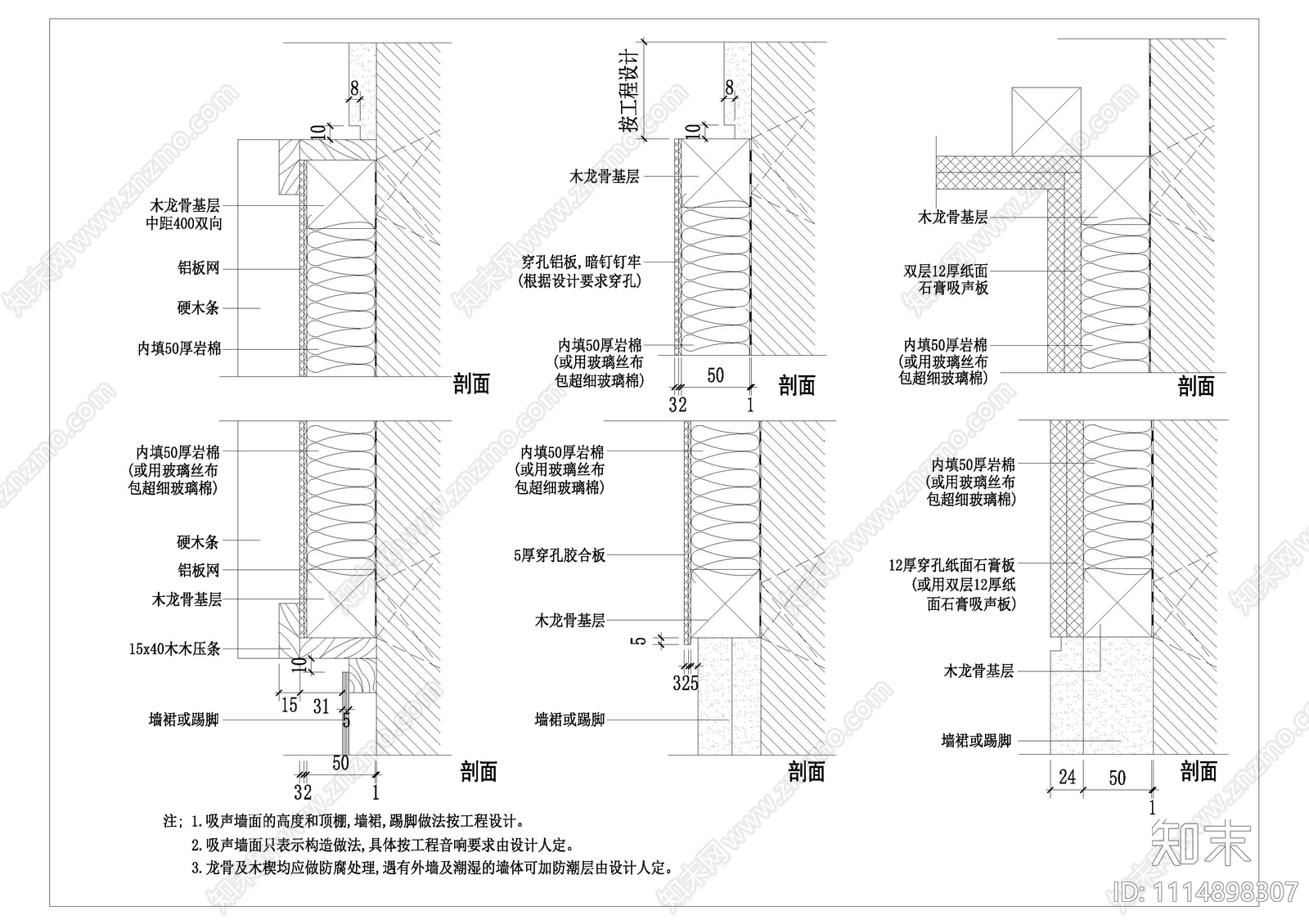
室内装饰隔音施工图下载【ID:1114898307】

室内装饰隔音CAD下载

ID: 1114898307
复制
上传作者
LY-DLY-D

上传时间2022-06-09

文件大小0.12M

设计风格:--

CAD版本:CAD2004

包含文件:CAD

授权独家

立即下载
收藏
分享
举报
相关推荐
综合
节点详图
其他节点详图
吊顶节点
墙面节点
地面节点
门节点
建筑工程节点
景观小品
楼梯节点
水景