CAD频道
CAD图库
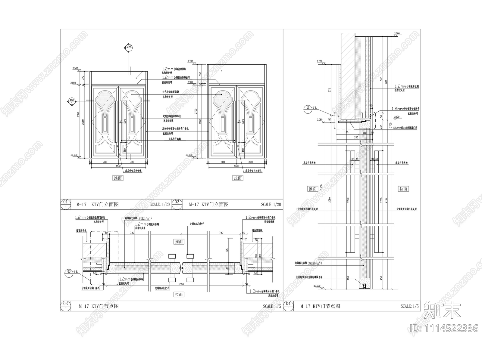
KTV隔音门节点 施工图 通用节点
1/
3
Previous
Next
KTV隔音门节点CAD下载
ID: 1114522336
复制
上传作者
Echo
上传时间
2022-06-02
文件大小
0.24M
设计风格:
--
CAD版本:
CAD2004
包含文件:
CAD
授权
独家
立即下载
收藏
分享
举报
相关推荐
综合
门节点
综合门节点
入户门
铁艺大门
月洞门
玻璃门节点
推拉门节点
隐形门节点