CAD频道
CAD图库
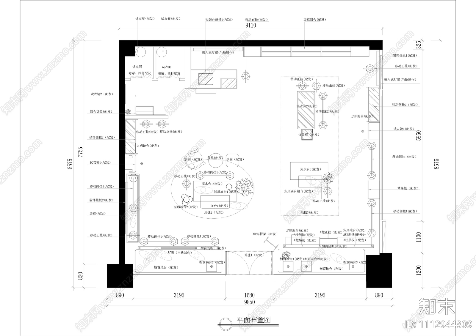
现代服装店施工图cad 施工图
1/
7
Previous
Next
现代服装店CADcadCAD下载
ID: 1112944309
复制
上传作者
绿萝和猫
上传时间
2022-05-11
文件大小
28.13M
设计风格:
现代简约
CAD版本:
CAD2004
包含文件:
CAD
授权
普通
立即下载
收藏
分享
举报
相关推荐
综合
平面图
工装平面图
景观平面图
规划平面图
其他平面图
小区平面图