CAD频道
CAD图库
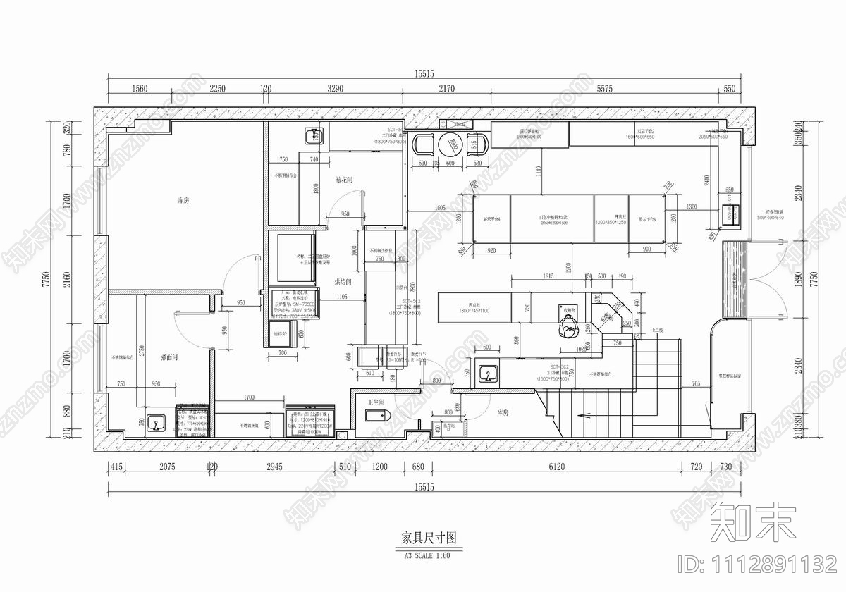
130㎡甜点蛋糕店CAD施工图
1/
9
Previous
Next
130㎡甜点蛋糕店CAD下载
ID: 1112891132
复制
上传作者
@白鹿原
上传时间
2022-05-10
文件大小
3.87M
设计风格:
--
CAD版本:
CAD2004
包含文件:
CAD
授权
普通
立即下载
收藏
分享
举报
相关推荐
综合
餐饮空间
蛋糕店
中餐厅
西餐厅
快餐店
自助餐厅
茶餐厅
其他餐饮空间
食堂
奶茶店