1/5


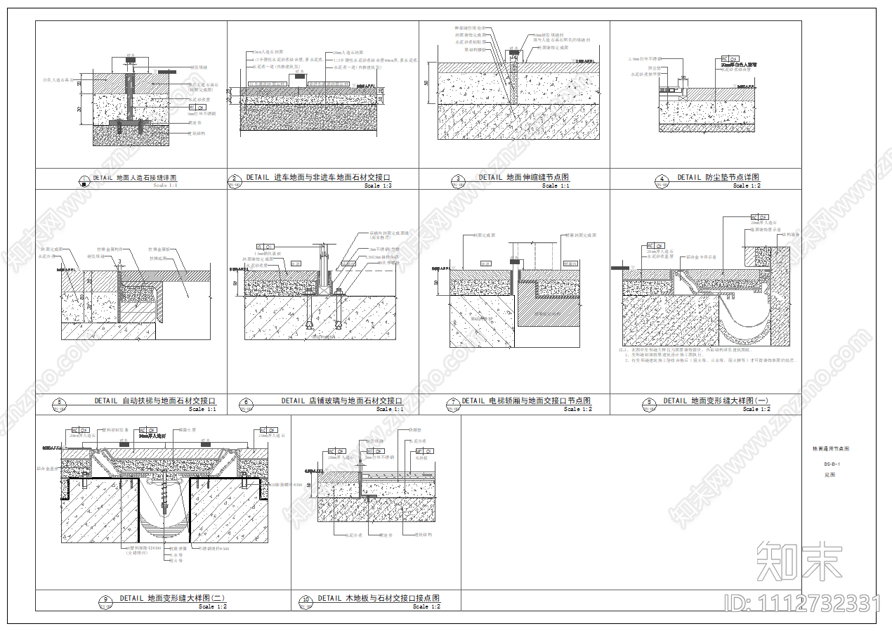
地面关系图地漏踢脚节点做法解析CAD下载
ID: 1112732331
复制
上传作者
素材资源库
素材资源库上传时间2022-05-08
文件大小2.72M
设计风格:现代简约
CAD版本:CAD2004
包含文件:CAD
授权普通
立即下载
收藏
分享
举报
相关推荐
综合
地面节点
地面综合节点
地坪漆
地台节点
地毯节点
路面节点
门槛石节点
木地板
花岗岩


素材资源库上传时间2022-05-08
文件大小2.72M
设计风格:现代简约
CAD版本:CAD2004
包含文件:CAD
授权普通