CAD频道
CAD图库
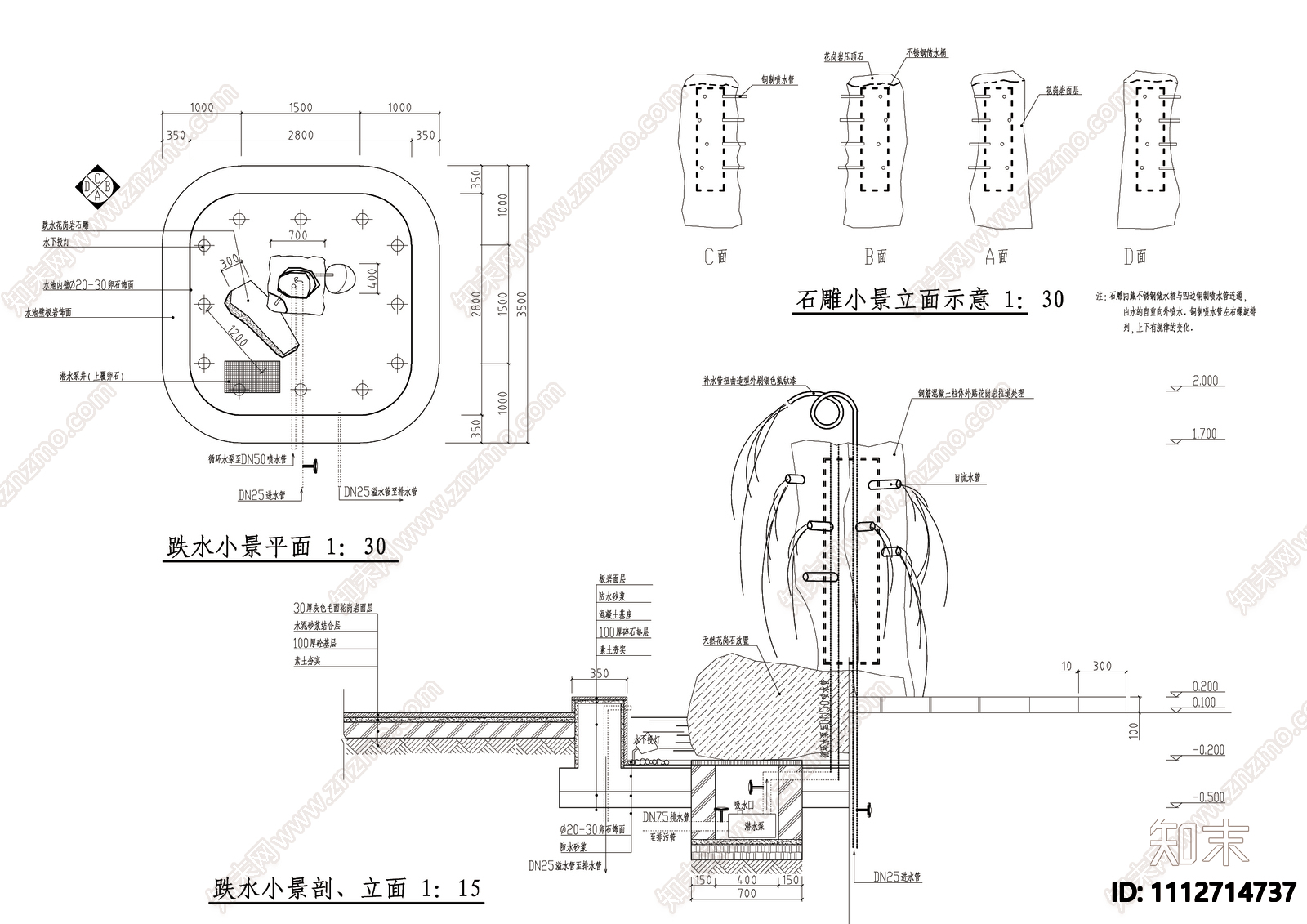
跌水小景详图 施工图
1/
4
Previous
Next
跌水小景详图CAD下载
ID: 1112714737
复制
上传作者
DJ-SJ
上传时间
2022-05-08
文件大小
0.1M
设计风格:
--
CAD版本:
CAD2010
包含文件:
CAD
授权
独家
立即下载
收藏
分享
举报
相关推荐
综合
节点详图
水景
吊顶节点
墙面节点
地面节点
门节点
其他节点详图
建筑工程节点
景观小品
楼梯节点