1/4


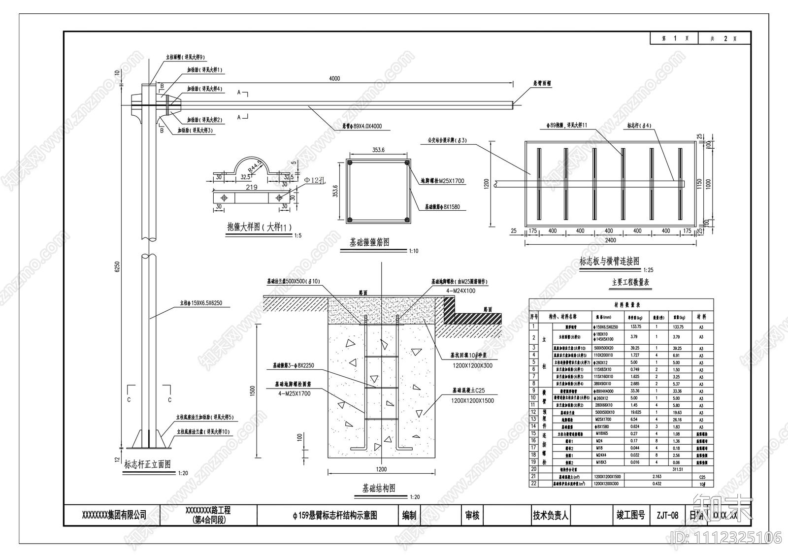
φ159悬臂标志杆结构示意图CAD下载
ID: 1112325106
复制
上传作者
═☆两马☆═
═☆两马☆═上传时间2022-04-30
文件大小0.13M
设计风格:--
CAD版本:CAD2007
包含文件:CAD
授权普通
立即下载
收藏
分享
举报
相关推荐
综合
节点详图
其他节点详图
吊顶节点
墙面节点
地面节点
门节点
建筑工程节点
景观小品
楼梯节点
水景


═☆两马☆═上传时间2022-04-30
文件大小0.13M
设计风格:--
CAD版本:CAD2007
包含文件:CAD
授权普通