
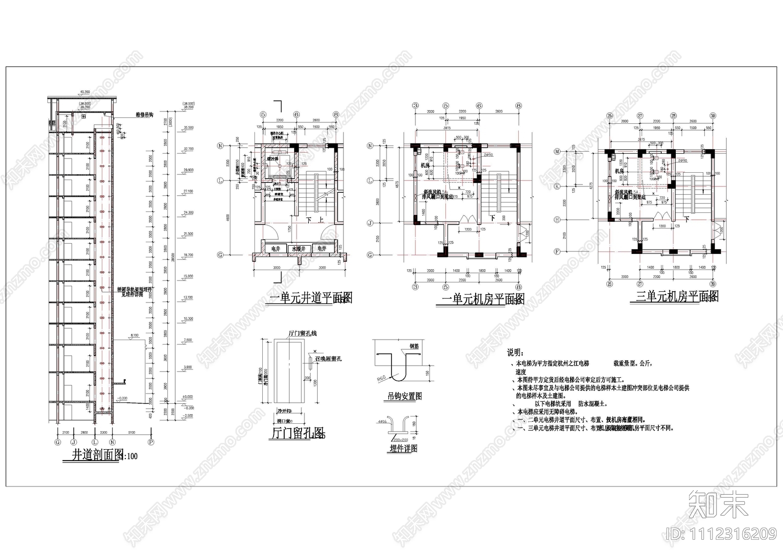
电梯间及井道详图CAD下载
ID: 1112316209
复制
上传作者
19332904
19332904上传时间2022-04-30
文件大小0.53M
设计风格:--
CAD版本:CAD2010
包含文件:CAD
授权普通
立即下载
收藏
分享
举报
相关推荐
综合
地面节点
路面节点
地坪漆
地台节点
地毯节点
门槛石节点
木地板
花岗岩
地面综合节点

19332904上传时间2022-04-30
文件大小0.53M
设计风格:--
CAD版本:CAD2010
包含文件:CAD
授权普通