CAD频道
CAD图库
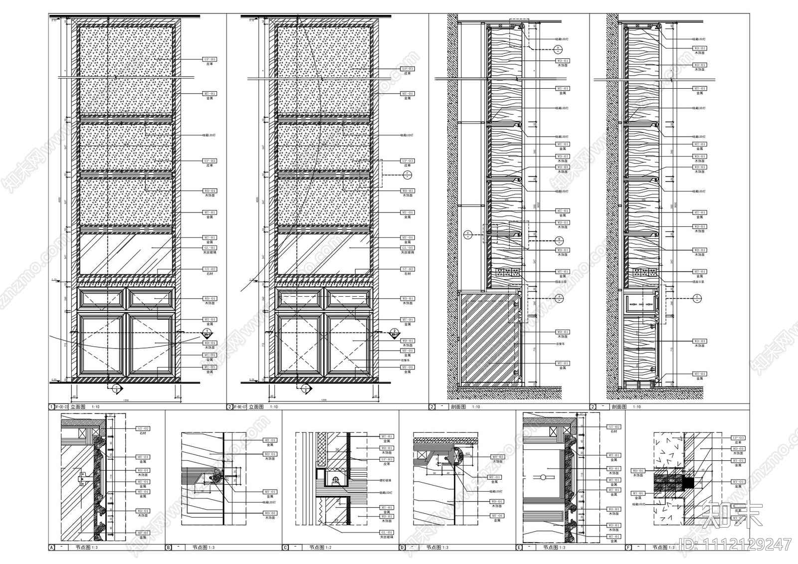
中式备餐柜大样图 施工图 柜类 家具节点详图
1/
2
Previous
Next
中式备餐柜大样图CAD下载
ID: 1112129247
复制
上传作者
那个那个
上传时间
2022-04-27
文件大小
0.98M
设计风格:
--
CAD版本:
CAD2004
包含文件:
CAD
授权
普通
立即下载
收藏
分享
举报
相关推荐
综合
家具节点详图
柜体节点
吧台节点
壁炉节点
卡座节点
前台节点
综合家具节点