CAD频道
CAD图库
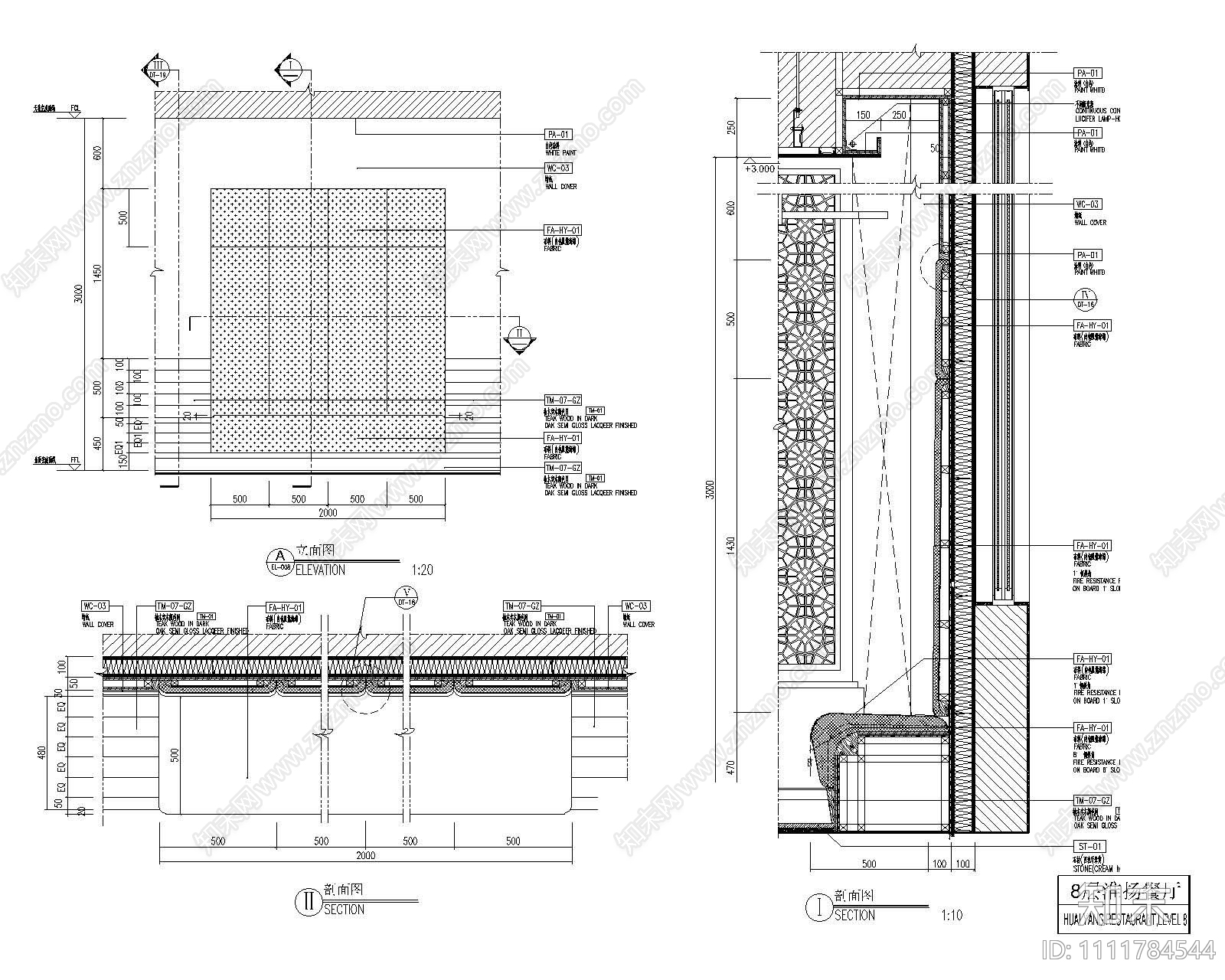
软包大样 施工图 墙面节点
1/
4
Previous
Next
软包大样CAD下载
ID: 1111784544
复制
上传作者
小趴菜园
上传时间
2022-04-23
文件大小
1.15M
设计风格:
--
CAD版本:
CAD2004
包含文件:
CAD
授权
独家
立即下载
收藏
分享
举报
相关推荐
综合
墙面节点
背景墙节点
轻钢龙骨隔墙
壁龛节点
隔音墙节点