CAD频道
CAD图库
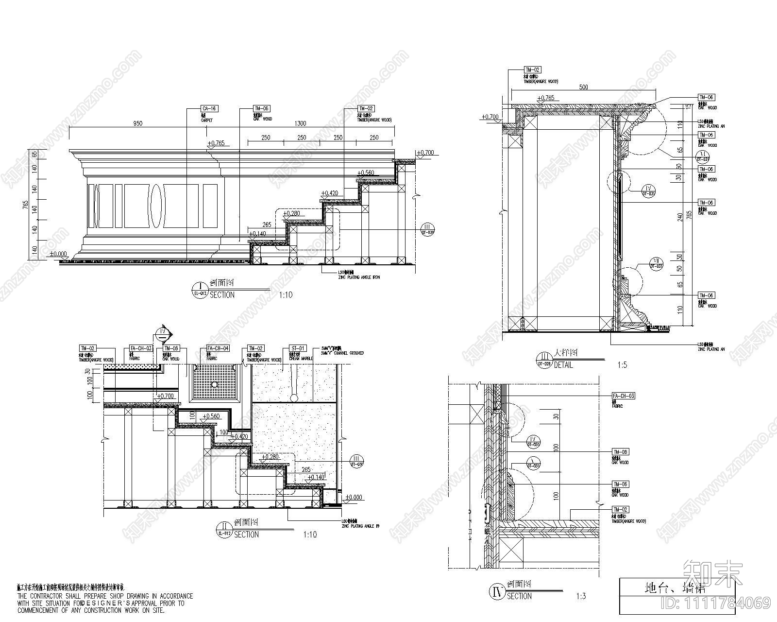
地台墙裙大样 施工图 地面节点
1/
4
Previous
Next
地台墙裙大样CAD下载
ID: 1111784069
复制
上传作者
小趴菜园
上传时间
2022-04-23
文件大小
1.36M
设计风格:
--
CAD版本:
CAD2004
包含文件:
CAD
授权
独家
立即下载
收藏
分享
举报
相关推荐
综合
地面节点
地台节点
地坪漆
地毯节点
路面节点
门槛石节点
木地板
花岗岩
地面综合节点