CAD频道
CAD图库
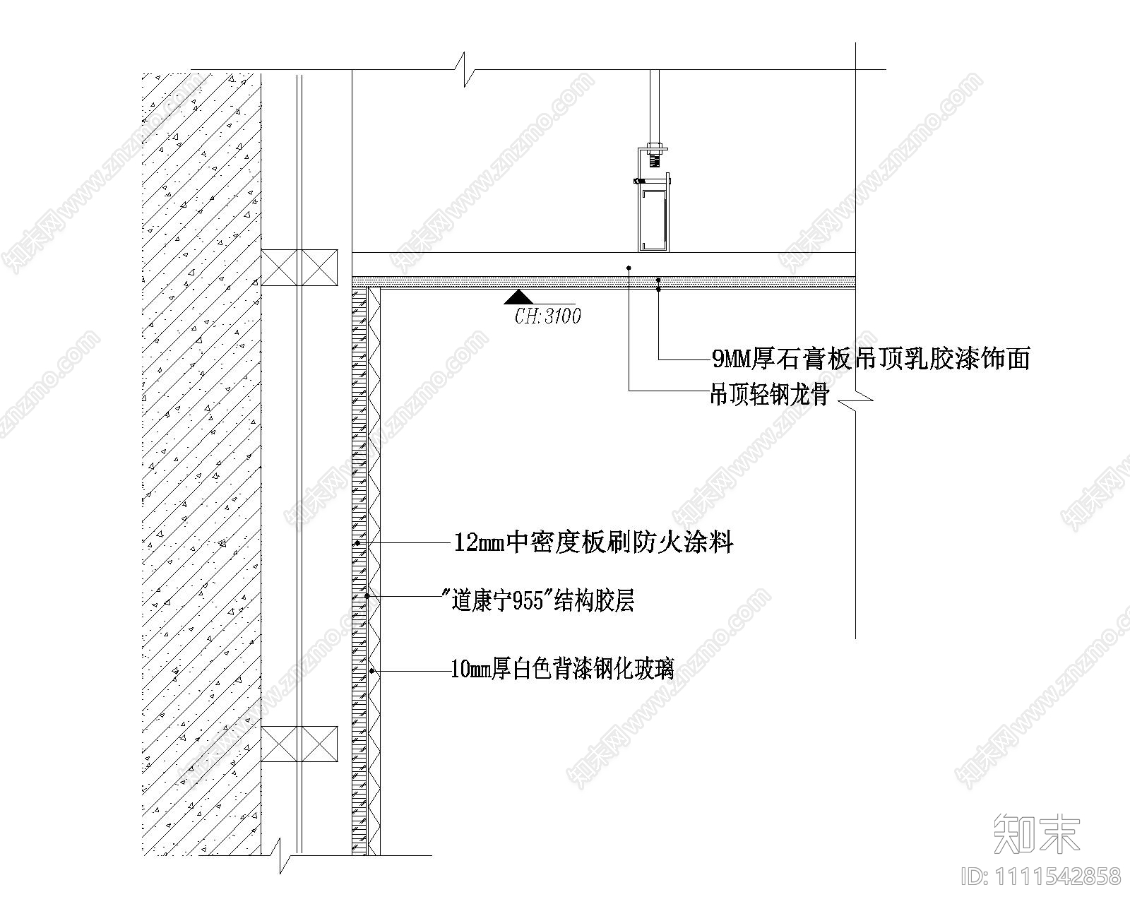
背漆玻璃 灯箱 磨砂玻璃穿孔铝板等节点图
1/
9
Previous
Next
背漆玻璃CAD下载
ID: 1111542858
复制
上传作者
阚阚资料
上传时间
2022-04-19
文件大小
0.51M
设计风格:
--
CAD版本:
CAD2014
包含文件:
CAD
授权
独家
立即下载
收藏
分享
举报
相关推荐
综合
节点详图
其他节点详图
吊顶节点
墙面节点
地面节点
门节点
建筑工程节点
景观小品
楼梯节点
水景