1/3


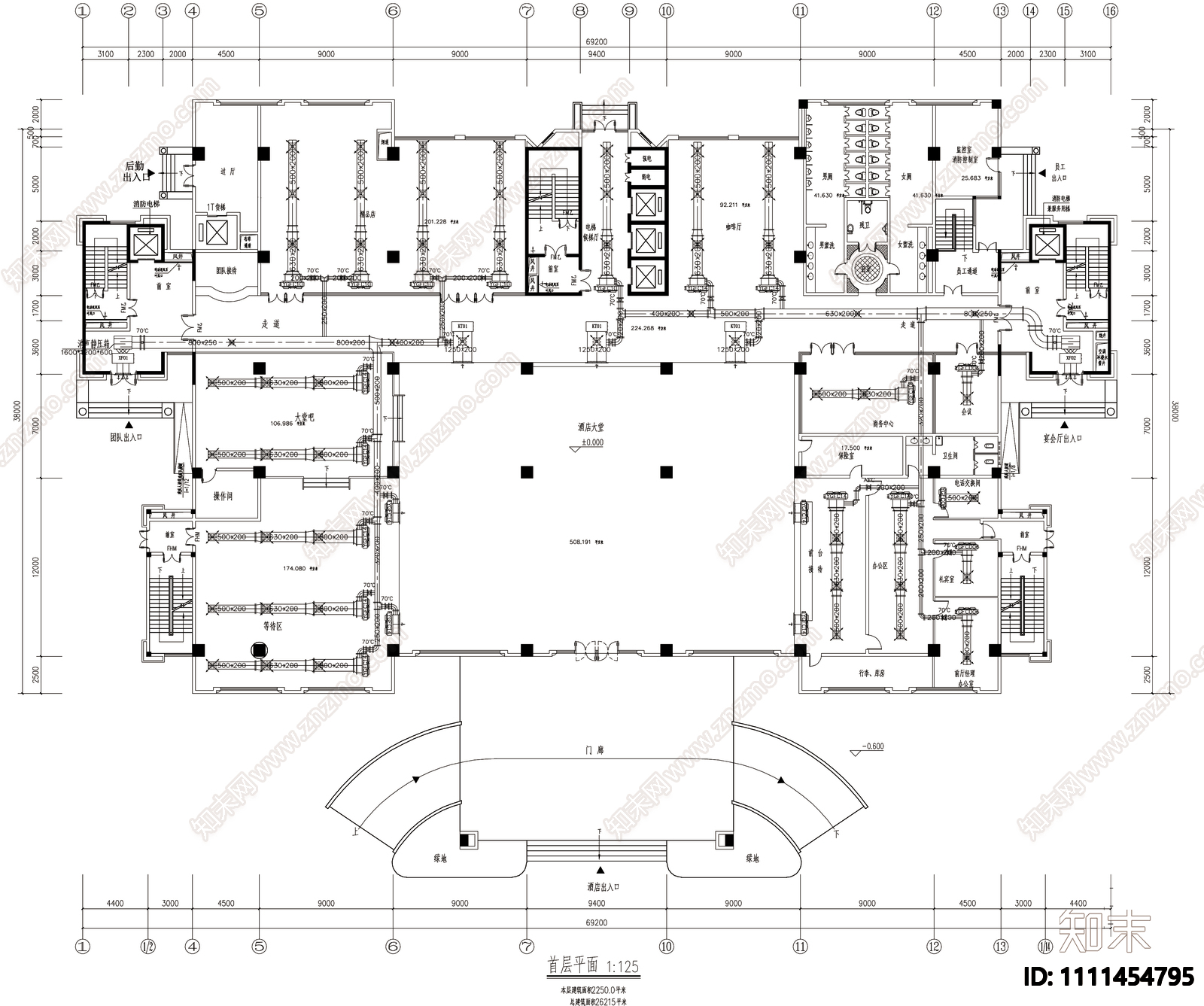
五星级酒店空调与通风图CAD下载
ID: 1111454795
复制
上传作者
DJ-SJ
DJ-SJ上传时间2022-04-18
文件大小5.38M
设计风格:--
CAD版本:CAD2010
包含文件:CAD
授权独家
立即下载
收藏
分享
举报
相关推荐
综合
机电工程
暖通空调
给排水图
水处理
电气图
电气工程节点
消防设施
机械设备
其他机电图纸
建筑给排水


DJ-SJ上传时间2022-04-18
文件大小5.38M
设计风格:--
CAD版本:CAD2010
包含文件:CAD
授权独家