CAD频道
CAD图库
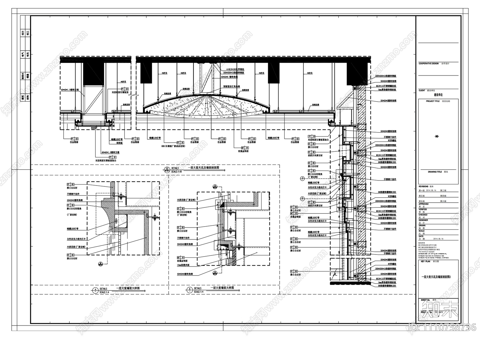
酒店大堂大样图异形天花 施工图 吊顶节点
1/
3
Previous
Next
酒店大堂大样图异形天花CAD下载
ID: 1110758736
复制
上传作者
天天学习
上传时间
2022-04-07
文件大小
5.05M
设计风格:
--
CAD版本:
CAD2007
包含文件:
CAD
授权
独家
立即下载
收藏
分享
举报
相关推荐
综合
酒店
酒店大堂
酒店餐厅
酒店公区
酒店客房
酒店卫生间
酒店套房
酒店宴会厅
其他酒店