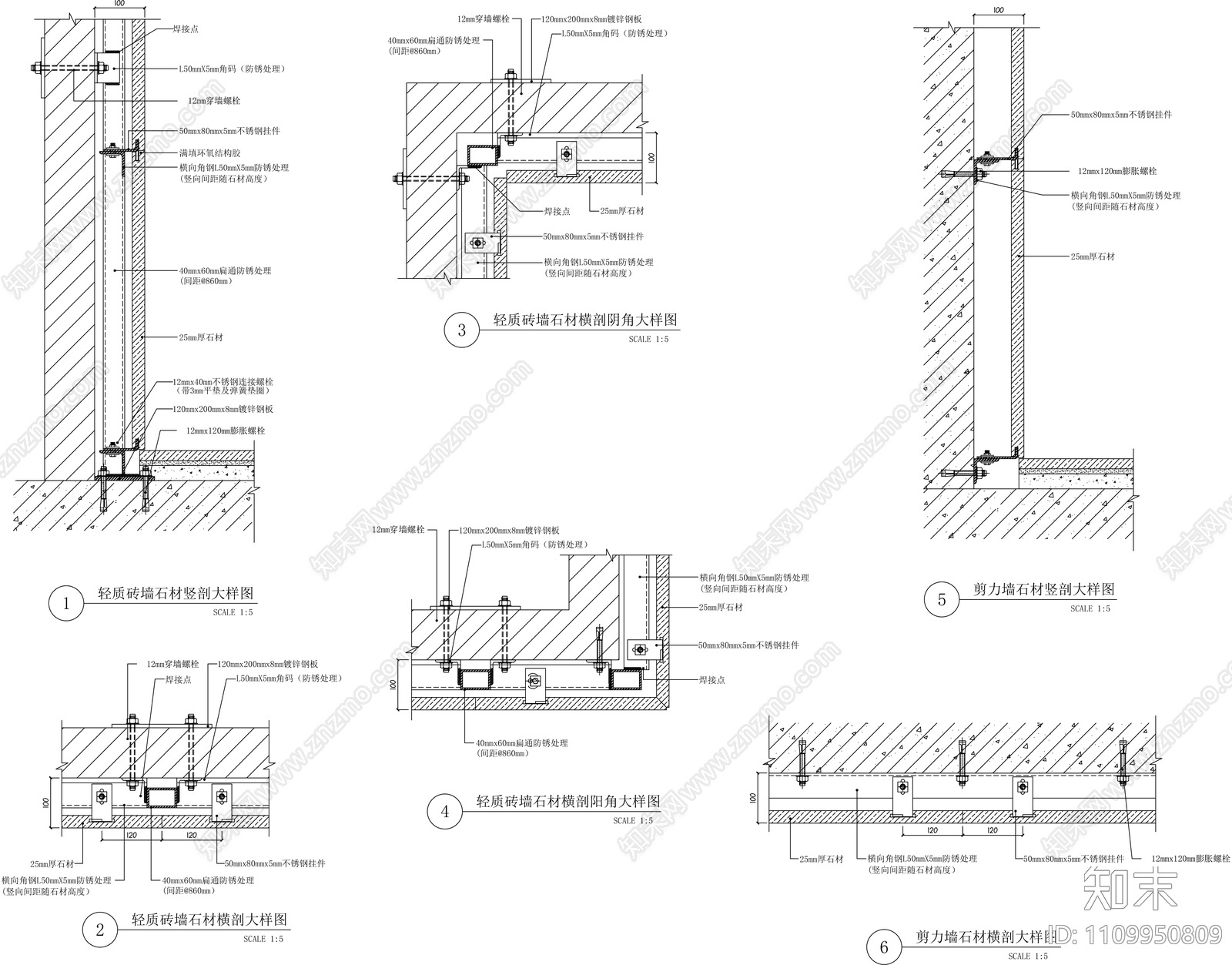
干挂石材施工图下载【ID:1109950809】

干挂石材CAD下载

ID: 1109950809
复制
上传作者
~者~者

上传时间2022-03-24

文件大小0.07M

设计风格:--

CAD版本:CAD2014

包含文件:CAD

授权普通

立即下载
收藏
分享
举报
相关推荐
综合
墙面节点
背景墙节点
轻钢龙骨隔墙
壁龛节点
隔音墙节点