CAD频道
CAD图库
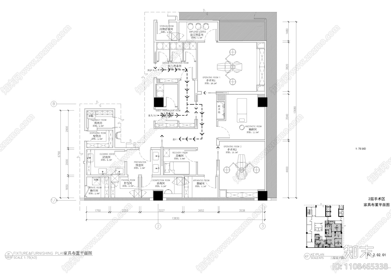
医院手术室 施工图
1/
4
Previous
Next
医院手术室CAD下载
ID: 1108465338
复制
上传作者
小趴菜园
上传时间
2022-02-25
文件大小
6M
设计风格:
--
CAD版本:
CAD2004
包含文件:
CAD
授权
独家
立即下载
收藏
分享
举报
相关推荐
综合
医疗空间
医院
养老院
宠物医院
中医馆
月子中心
其他医疗空间