CAD频道
CAD图库
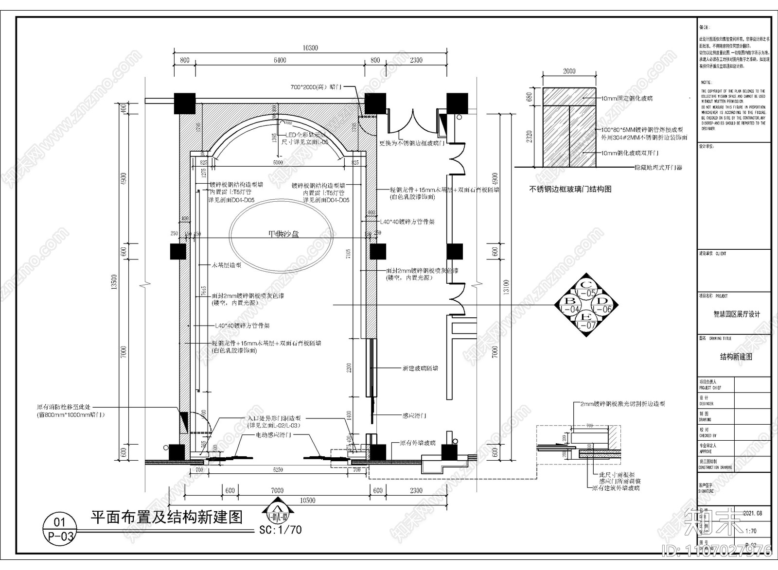
智慧园区科技展厅CAD施工图 陈列厅 博物馆 施工图 行政机构
1/
6
Previous
Next
智慧园区科技展厅CAD下载
ID: 1107027976
复制
上传作者
@白鹿原
上传时间
2022-01-13
文件大小
0.89M
设计风格:
--
CAD版本:
CAD2004
包含文件:
CAD
授权
普通
立即下载
收藏
分享
举报
相关推荐
综合
文化建筑
博物馆建筑
图书馆建筑
体育馆建筑
美术馆建筑
游泳馆建筑
教堂
其他文化建筑