CAD频道
CAD图库
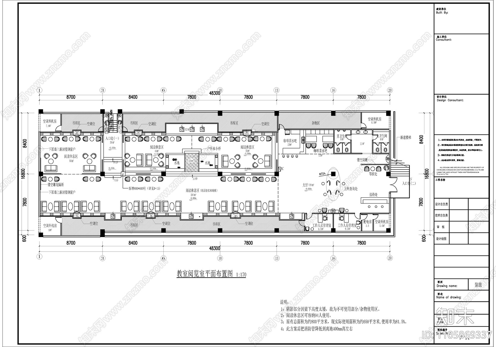
书吧全套施工详图
1/
9
Previous
Next
书吧全套施工详图CAD下载
ID: 1105869337
复制
上传作者
@白鹿原
上传时间
2021-12-19
文件大小
13.54M
设计风格:
--
CAD版本:
CAD2004
包含文件:
CAD
授权
普通
立即下载
收藏
分享
举报
相关推荐
综合
商业空间
书店
售楼处
商场
其他商业空间
超市
服装店
美甲店
珠宝店
4s店