1/2


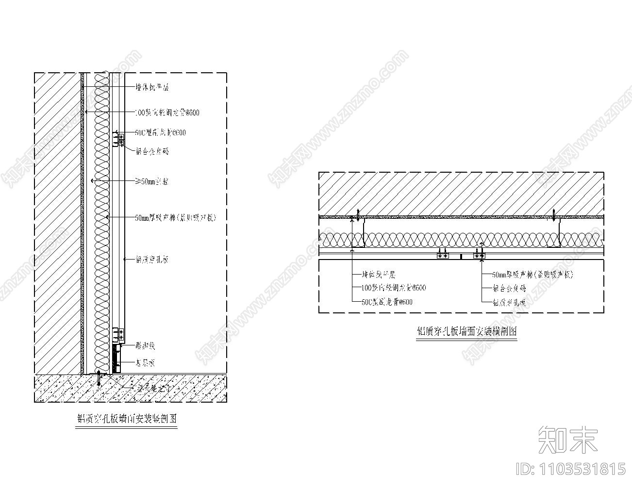
穿孔铝板吸音板安装大样图CAD下载
ID: 1103531815
复制
上传作者
支末饺子
支末饺子上传时间2021-10-31
文件大小0.33M
设计风格:--
CAD版本:CAD2010
包含文件:CAD
授权普通
立即下载
收藏
分享
举报
相关推荐
综合
节点详图
其他节点详图
吊顶节点
墙面节点
地面节点
门节点
建筑工程节点
景观小品
楼梯节点
水景


支末饺子上传时间2021-10-31
文件大小0.33M
设计风格:--
CAD版本:CAD2010
包含文件:CAD
授权普通