1/15


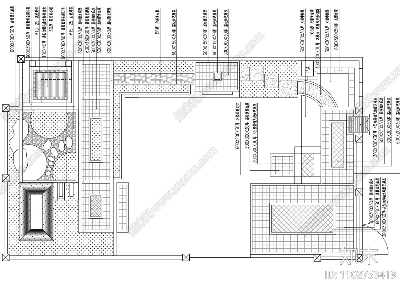
湖南现代法欧中式古典别墅庭院景观CADCAD下载
ID: 1102753419
复制
上传作者
359554311
359554311上传时间2021-10-19
文件大小391.9M
设计风格:--
CAD版本:CAD2000
包含文件:CAD
授权普通
立即下载
收藏
分享
举报
相关推荐
综合
居住区景观
庭院
屋顶花园
示范区景观
售楼处景观
小区主入口
小区中心广场
宅间绿地
社区儿童区
社区健身区


359554311上传时间2021-10-19
文件大小391.9M
设计风格:--
CAD版本:CAD2000
包含文件:CAD
授权普通