CAD频道
CAD图库
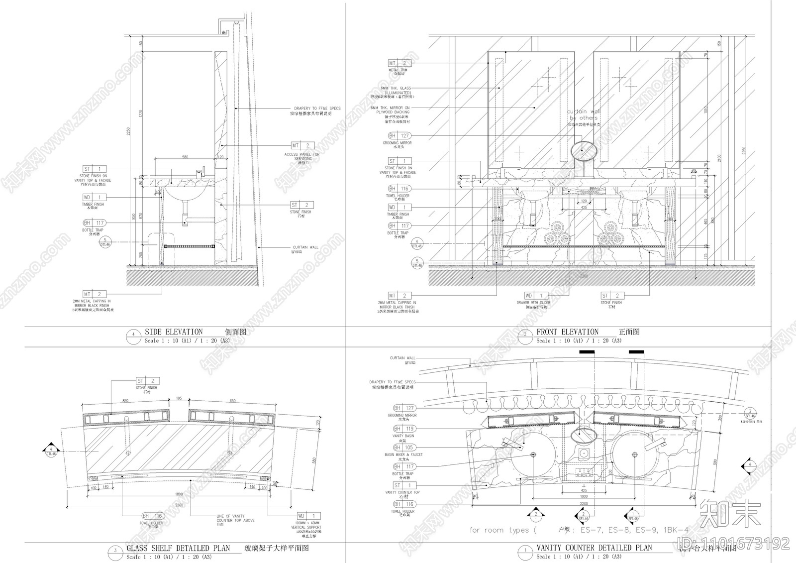
顶级酒店台盆大样 施工图 家具节点 家具节点详图
顶级酒店台盆大样CAD下载
ID: 1101673192
复制
上传作者
小趴菜园
上传时间
2021-09-24
文件大小
1.28M
设计风格:
--
CAD版本:
CAD2004
包含文件:
CAD
授权
独家
立即下载
收藏
分享
举报
相关推荐
综合
工装图库
酒店家具
办公家具图库
餐厅家具
展览展厅家具
工装综合图库