CAD频道
CAD图库
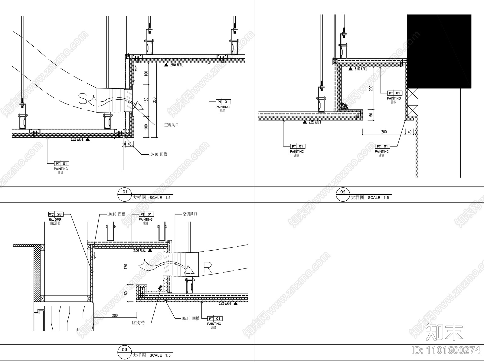
天花节点 空调出风口详图 暗藏灯带详图 轻钢龙骨石膏板吊顶 施工图
1/
4
Previous
Next
天花节点CAD下载
ID: 1101600274
复制
上传作者
*晴天~
上传时间
2021-09-22
文件大小
0.26M
设计风格:
现代简约
CAD版本:
CAD2000
包含文件:
CAD
授权
普通
立即下载
收藏
分享
举报
相关推荐
综合
电气工程节点
暖通节点
给排水节点详图
电气节点
水处理节点
其他电气工程节点