1/2


普通平开窗装配图及截面图CAD下载
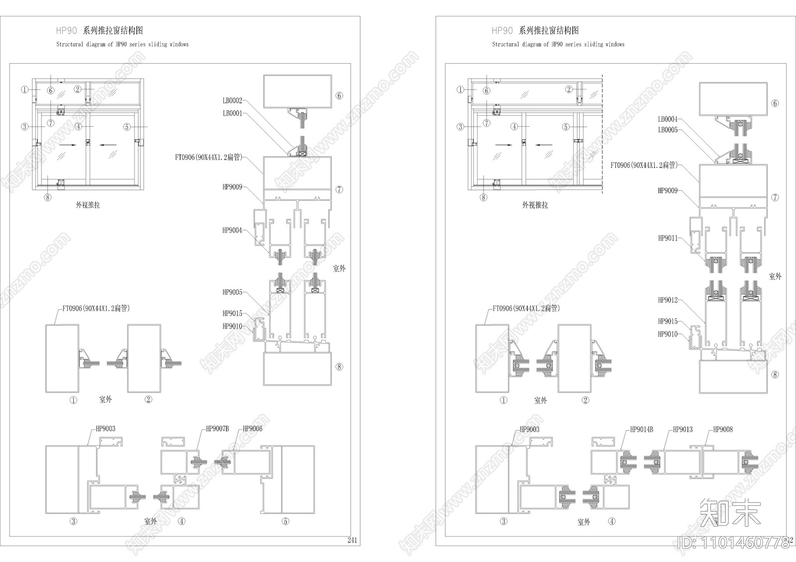
ID: 1101460778
复制
上传作者
xin图
xin图上传时间2021-09-17
文件大小0.74M
设计风格:--
CAD版本:CAD2004
包含文件:CAD
授权独家
立即下载
收藏
分享
举报
相关推荐
综合
节点详图
窗节点
吊顶节点
墙面节点
地面节点
门节点
其他节点详图
建筑工程节点
景观小品
楼梯节点


xin图上传时间2021-09-17
文件大小0.74M
设计风格:--
CAD版本:CAD2004
包含文件:CAD
授权独家