CAD频道
CAD图库
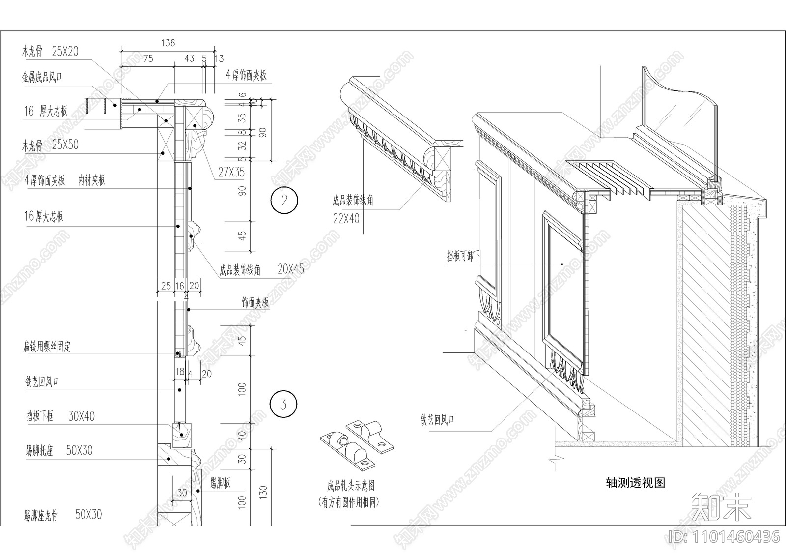
暖气罩节点 施工图
1/
2
Previous
Next
暖气罩节点CAD下载
ID: 1101460436
复制
上传作者
xin图
上传时间
2021-09-17
文件大小
3.09M
设计风格:
--
CAD版本:
CAD2004
包含文件:
CAD
授权
独家
立即下载
收藏
分享
举报
相关推荐
综合
电气工程节点
暖通节点
给排水节点详图
电气节点
水处理节点
其他电气工程节点