CAD频道
CAD图库
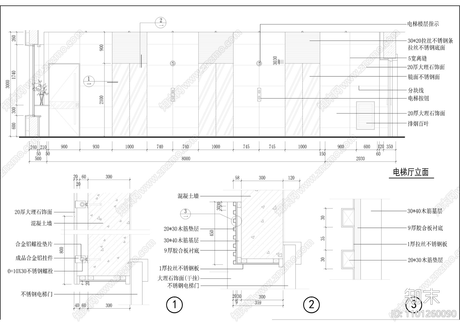
电梯厅石材饰面大样 施工图
1/
2
Previous
Next
电梯厅石材饰面大样CAD下载
ID: 1101260090
复制
上传作者
小趴菜园
上传时间
2021-09-13
文件大小
1.05M
设计风格:
--
CAD版本:
CAD2004
包含文件:
CAD
授权
独家
立即下载
收藏
分享
举报
相关推荐
综合
室内工艺节点
其他室内工艺节点