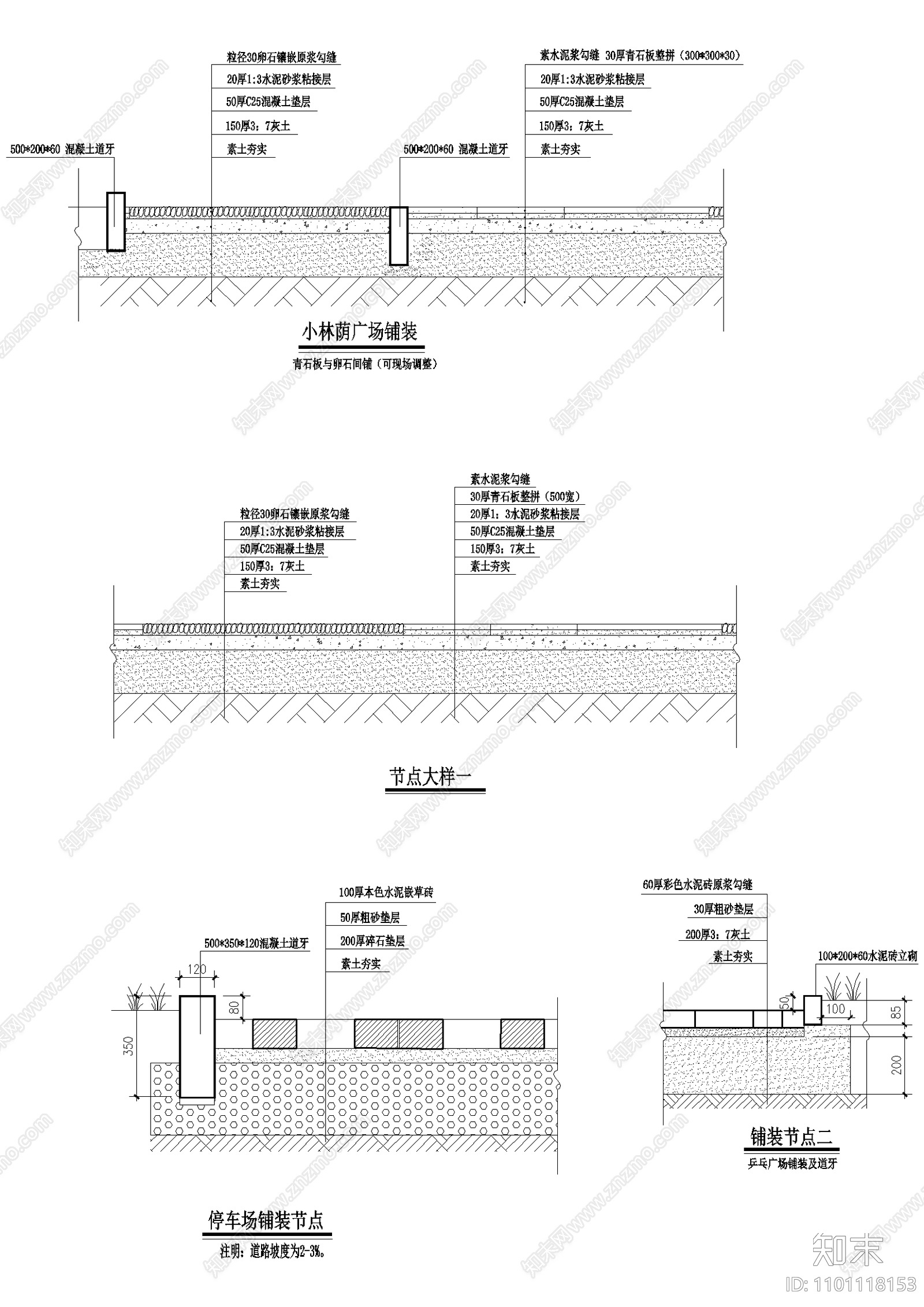
广场铺装详图施工图下载【ID:1101118153】

广场铺装详图CAD下载

ID: 1101118153
复制
上传作者
J2022J2022

上传时间2021-09-09

文件大小1.15M

设计风格:--

CAD版本:CAD2004

包含文件:CAD

授权普通

立即下载
收藏
分享
举报
相关推荐
综合
景观小品
铺装
亭子
廊架
景墙
综合景观小品
雨棚
围墙
挡土墙
入口