1/4


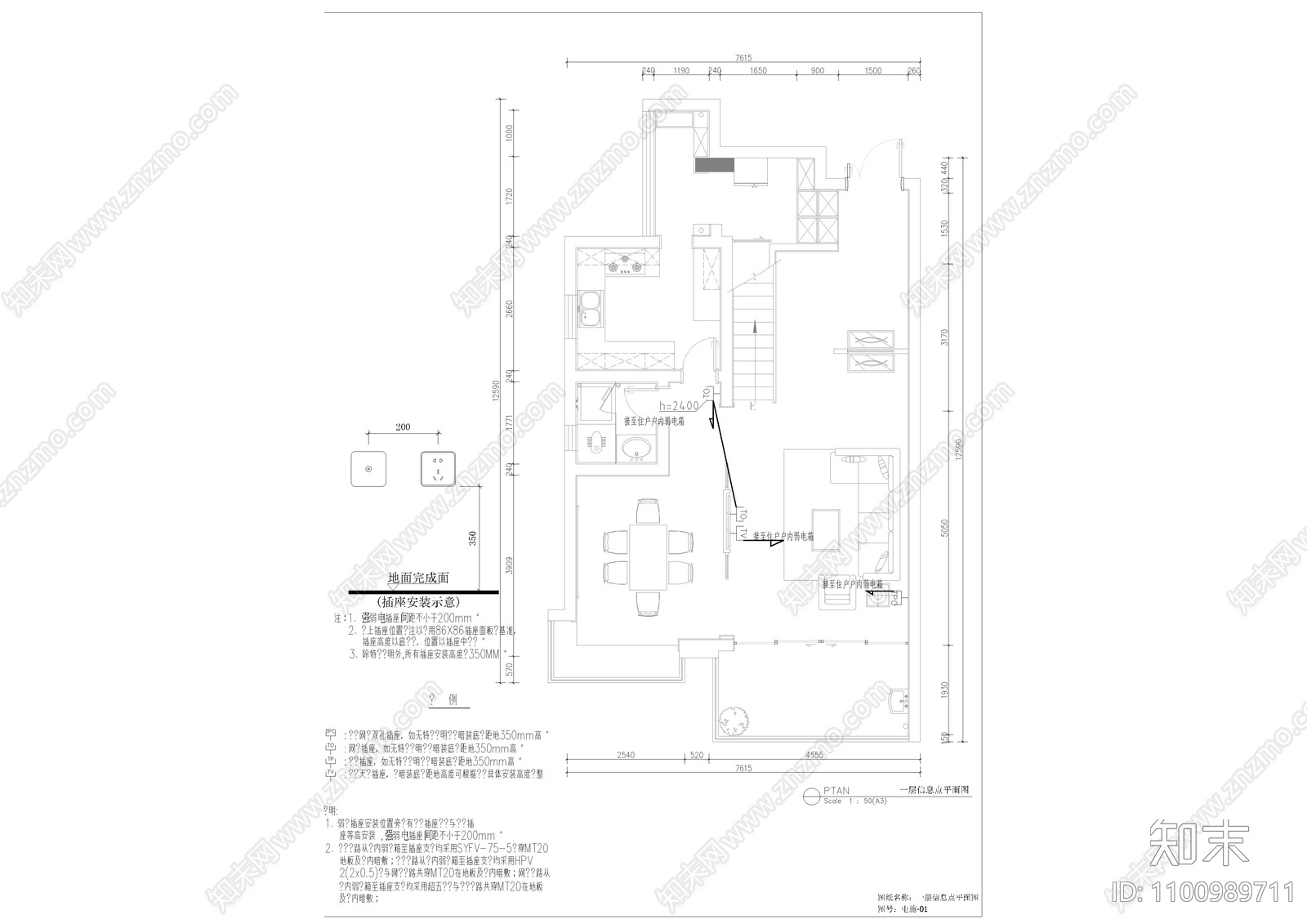
复式别墅电气图纸CAD下载
ID: 1100989711
复制
上传作者
小趴菜园
小趴菜园上传时间2021-09-06
文件大小2.39M
设计风格:--
CAD版本:CAD2004
包含文件:CAD
授权独家
立即下载
收藏
分享
举报
相关推荐
综合
机电工程
电气图
给排水图
水处理
暖通空调
电气工程节点
消防设施
机械设备
其他机电图纸
建筑给排水


小趴菜园上传时间2021-09-06
文件大小2.39M
设计风格:--
CAD版本:CAD2004
包含文件:CAD
授权独家