CAD频道
CAD图库
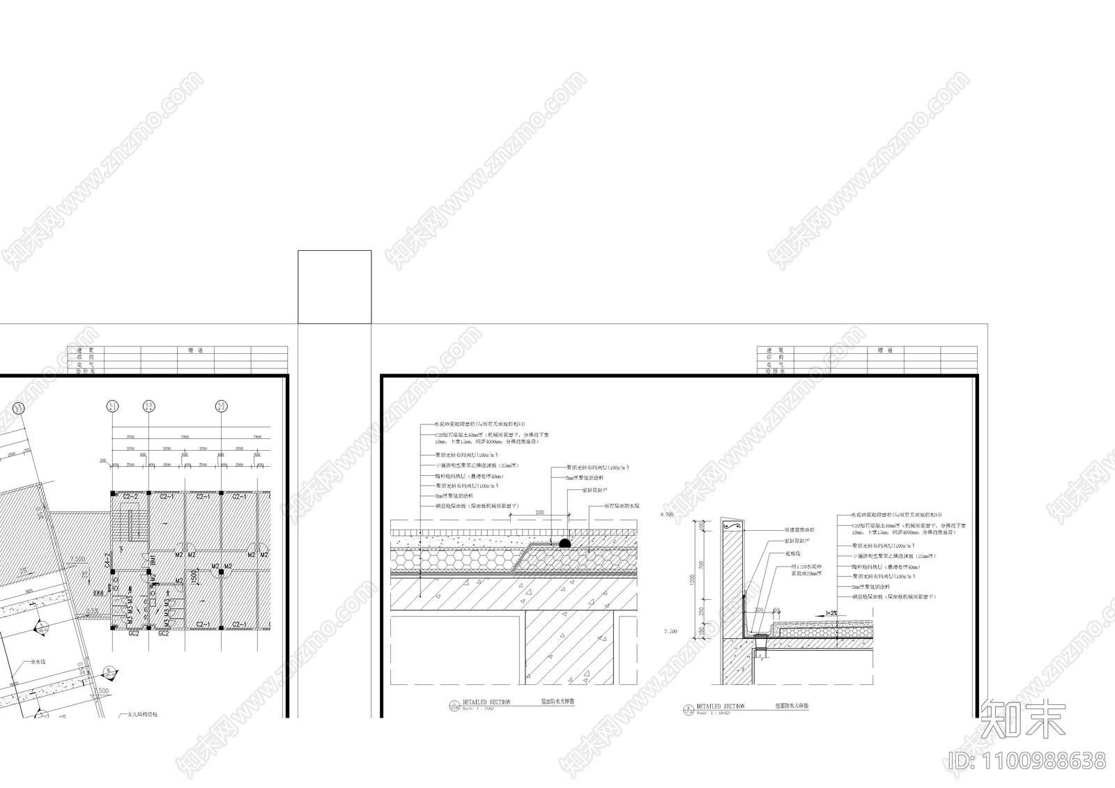
大学屋面防水图 施工图
1/
2
Previous
Next
大学屋面防水图CAD下载
ID: 1100988638
复制
上传作者
小趴菜园
上传时间
2021-09-06
文件大小
3.19M
设计风格:
--
CAD版本:
CAD2004
包含文件:
CAD
授权
独家
立即下载
收藏
分享
举报
相关推荐
综合
建筑工程节点
屋顶
柱子节点
吊装节点
斗拱节点
楼板节点
女儿墙节点
塔吊节点
天窗节点
屋檐节点